
| Equine Barn Company |
| Equine Barn Company |
| Over 100 Years Of Combined Horse Involvement and Construction and Equine Construction Experience |













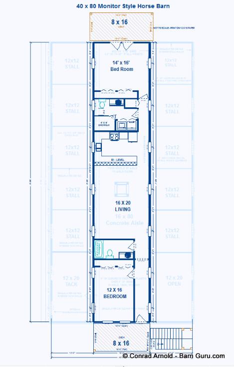
| Buy The Floor Plan, Footing layout, Footing Details and Elevations for $350.00. Need Detailed Framing Plans: Add $300.00 Need Detailed Material List with Georgia Pricing Add $200.00 Add $100.00 to Modify the plan |