
| Equine Barn Company |
| Equine Barn Company |
| Over 100 Years Of Combined Horse Involvement and Construction and Equine Construction Experience |
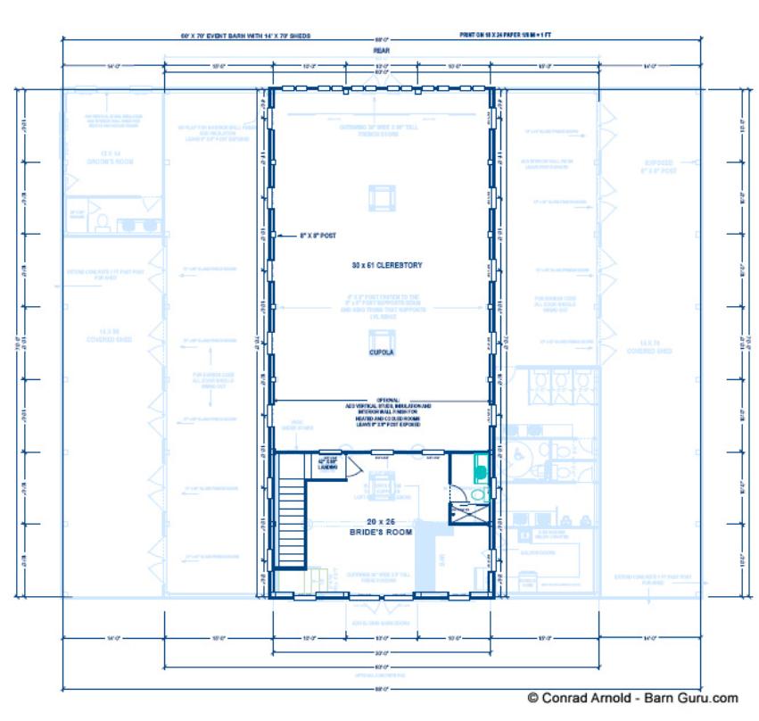
| The Hannah Event Barn Main Barn 60 x 70 = 4200 sf Left Shed 14 x 70 = 980 sf Right Shed 14 x 70 = 980 sf Optional Loft above 600 sf |
| Buy The Plans |
| Buy The Basic Plans. Floor Plan, Footing layout, Footing Details and Elevations for $600.00. Add $200.00 to Modify the plan |










If you are planning to build the barn yourself or if your builder is unfamiliar with horse barn construction you may need framing details and a materials list . Most experienced builders would only need the above floor plan and elevations and could give you several framing option. Our framing details would be the way we would frame the barn using 8" x 8" post with double rafters that sandwich post 10' o.c., with 4" x 6" purlins 32" o.c., or you can choose typical roof framing with rafters 16" o.c. Either framing techniques will show detailed site built king trusses 10' o.c. You can always order the framing details and a material list later if you need them. Add $600.00 for framing details if you need them. Add $400.00 if you need a material list with Georgia material pricing. Add $200.00 to Modify the plan |



