Equine Barn Company
Equine Barn Company
We Are A
Copyright © Equine Barn LLC All Rights Reserved
Over 100 Years Of Combined Horse Involvement and Construction and Equine Construction Experience
Any Style, Any Size, From Opulent To Practical, We Build Anything and Everything Equestrian.
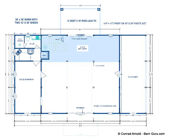
Buy The Floor Plan, Footing layout, footing
details and Elevations for $350.00.

Need Detailed Framing Plans: Add $300.00

Need Detailed Material List with Georgia Pricing
Add $300.00

Add $200.00 to Modify the plan
Your name:
Your email address:
Your phone number:
Comments:
Conrad Arnold
678-404-BARN (2276)

Conrad@barnguru.com
Contact  
Or
Please Type In The Woodman In The Comment Box
With Kitchen